Назовите оператору контакт центра при звонке ваш промокод:    

Безопасная аренда

Подробнее

Онлайн просмотры и договор с цифровой подписью

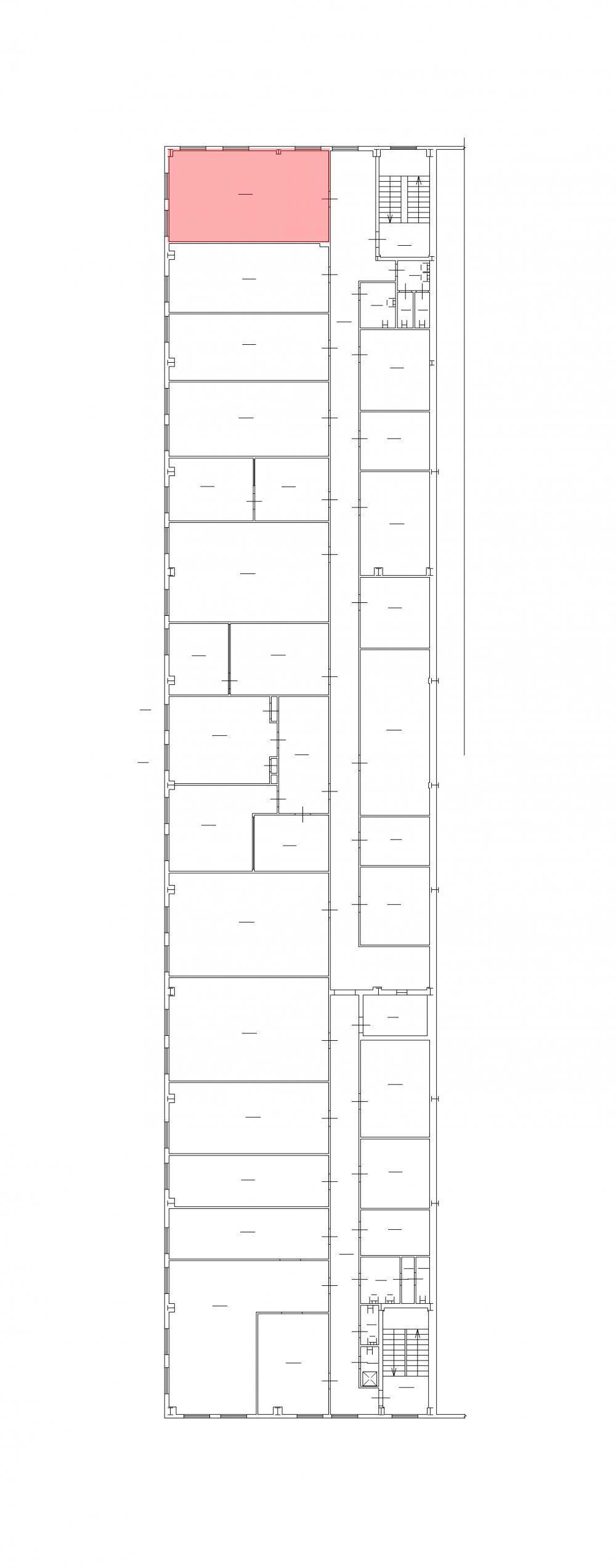
Помещение
Этаж 2
Площадь 50.7 м2
Ставка 609 руб./м2
Характеристики
Безопасность
Охрана Круглосуточная
Коммуникации
Телефон есть
Интернет оптоволокно
В арендную плату входит
  • Профессиональное управление
  • НДС
Оплачивается отдельно
  • Клининг
План помещения
Описание
Собственник предлагает в аренду кабинет площадью 50.7 кв. м по адресу: ул. Салова, дом 56.

Второй этаж здания.
Высота потолков 2.50 м.
Планировка: коридорно-кабинетная.

Описание помещений: стены - окрашенные обои, потолок подвесной типа "Армстронг", напольное покрытие - линолеум.
Офис оснащен необходимыми инженерными системами.

К услугам арендаторов - парковка, кафе (в шаговой доступности), терминалы оплаты услуг.
Охрана 24 часа.
Возможен круглосуточный режим работы.

Расположение: ул. Салова, д. 56.
+7 (812) 244-72-90
Перезвоните мне
Хотите посмотреть? Покажем вам это помещение и несколько похожих
Запишитесь на просмотр
Вас также может заинтересовать
49.2 м2
39 310.8 руб
54.8 м2
32 825.2 руб
51 м2
31 569 руб
51.2 м2
30 668.8 руб
50.5 м2
30 350.5 руб