Назовите оператору контакт центра при звонке ваш промокод:    

Безопасная аренда

Подробнее

Онлайн просмотры и договор с цифровой подписью

Помещение
Этаж 1
Площадь 305.9 м2
Ставка 999 руб./м2
Характеристики
Безопасность
Охрана Круглосуточная
Коммуникации
Телефон есть
Интернет оптоволокно
В арендную плату входит
  • Профессиональное управление
  • НДС
Оплачивается отдельно
  • Клининг
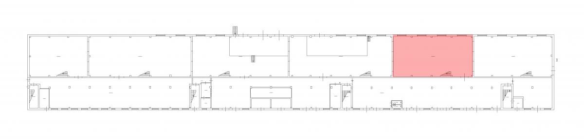
План помещения
Описание
На территории производственно-складского комплекса "Шаумяна" в аренду сдаётся помещение под мастерскую.
Общая площадь помещения составляет 305.9 кв. м.

Расположение: ул. Салова, дом 56.
Особенности локации: охраняемая территория, проход по пропускам.

Находится на первом этаже здания.
Высота потолка 7.13 м, полы - бетонные.

Погрузочно-разгрузочные работы осуществляются через ворота 3 х 4 м.
Удобный подъезд для грузового транспорта и площадка для маневрирования обеспечат легкую доставку грузов к производству.

Оснащение: выделенная электрическая мощность 10 кВт, освещение, отопление, пожарная сигнализация.

В стоимость аренды входит НДС.

Для уточнения деталей и организации просмотра участка, пожалуйста, свяжитесь с нами.
Мы готовы обсудить условия аренды и ответить на все интересующие вопросы.
+7 (812) 244-72-90
Перезвоните мне
Хотите посмотреть? Покажем вам это помещение и несколько похожих
Запишитесь на просмотр
Вас также может заинтересовать
305.9 м2
296 417.1 руб