Назовите оператору контакт центра при звонке ваш промокод:    

Безопасная аренда

Подробнее

Онлайн просмотры и договор с цифровой подписью

Помещение
Этаж 1, антресоль
Площадь 5 022.2 м2
Ставка 869 руб./м2
Характеристики
Безопасность
Охрана Круглосуточная
Коммуникации
Телефон есть
Интернет оптоволокно
В арендную плату входит
  • Профессиональное управление
  • НДС
Оплачивается отдельно
  • Клининг
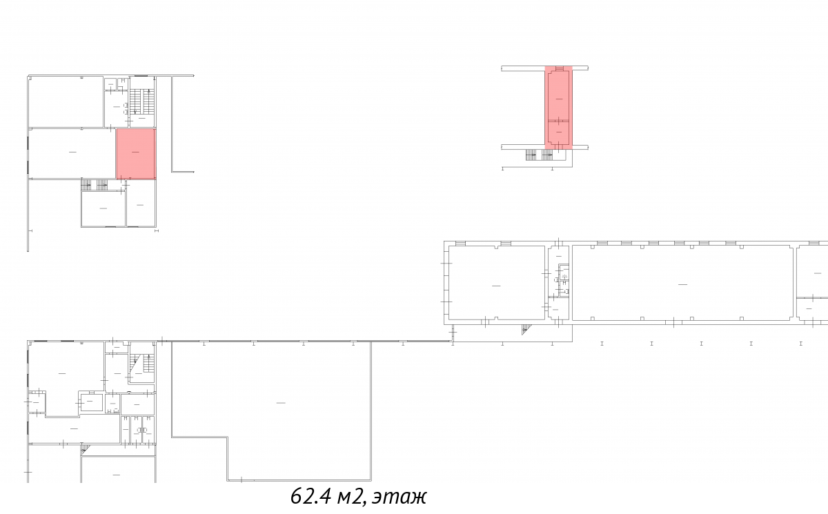
План помещения
Описание
Аренда производственного цеха площадью 5022.2 кв. м на территории технопарка "Шаумяна".
Высота потолка 9,8-11 м, антипылевые полы, имеется пандус + роллетные ворота (ворота на пандусе - 4 шт., ворота в ноль - 4 шт.).

Характеристики:  
Оснащение: выделенная электрическая мощность 300 кВт (с возможностью увеличения), освещение, отопление, пожарная сигнализация, ХВС и водоотведение.
Территория охраняется круглосуточно, ведется видеонаблюдение.

Расположение: ул. Салова, д.56.
В непосредственной близости - КАД с выездом на Московское шоссе,  Витебский проспект, улицы Бухарестская и Софийская.

Охраняемая парковка для сотрудников и гостей.
+7 (812) 244-72-90
Перезвоните мне
Хотите посмотреть? Покажем вам это помещение и несколько похожих
Запишитесь на просмотр
Вас также может заинтересовать
5022.6 м2
4 364 639.4 руб