Назовите оператору контакт центра при звонке ваш промокод:    

Безопасная аренда

Подробнее

Онлайн просмотры и договор с цифровой подписью

Помещение
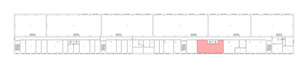
Этаж 2
Площадь 99.4 м2
Ставка 948 руб./м2
Характеристики
Безопасность
Охрана Круглосуточная
Коммуникации
Телефон есть
Интернет оптоволокно
В арендную плату входит
  • Профессиональное управление
  • НДС
Оплачивается отдельно
  • Клининг
План помещения
Описание
Большой просторный офис в технопарке на Салова 56 сдаётся в аренду напрямую от собственника!
Ближайшая станция метро "Бухарестская" в 18 минутах пути.

В планировке имеется зонирование с возможностью перепланировки.
На этаже есть все удобства.

Есть множество парковочных мест, второй этаж со всеми удобствами с возможностью взять рядом помещения под склад.
Множество окон создаёт дополнительный простор для сотрудников.

Можно подвести высокоскоростной интернет и цифровую телефонию.
Клининг раз в неделю.
НДС включен в стоимость.

На месте действует пропускной режим, круглосуточная охрана.

Звоните и записывайтесь на просмотр!
+7 (812) 244-72-90
Перезвоните мне
Хотите посмотреть? Покажем вам это помещение и несколько похожих
Запишитесь на просмотр
Вас также может заинтересовать
100.1 м2
93 893.8 руб
92.3 м2
67 286.7 руб
92.2 м2
64 447.8 руб
89.7 м2
54 627.3 руб
89.8 м2
53 969.8 руб