Назовите оператору контакт центра при звонке ваш промокод:    

Безопасная аренда

Подробнее

Онлайн просмотры и договор с цифровой подписью

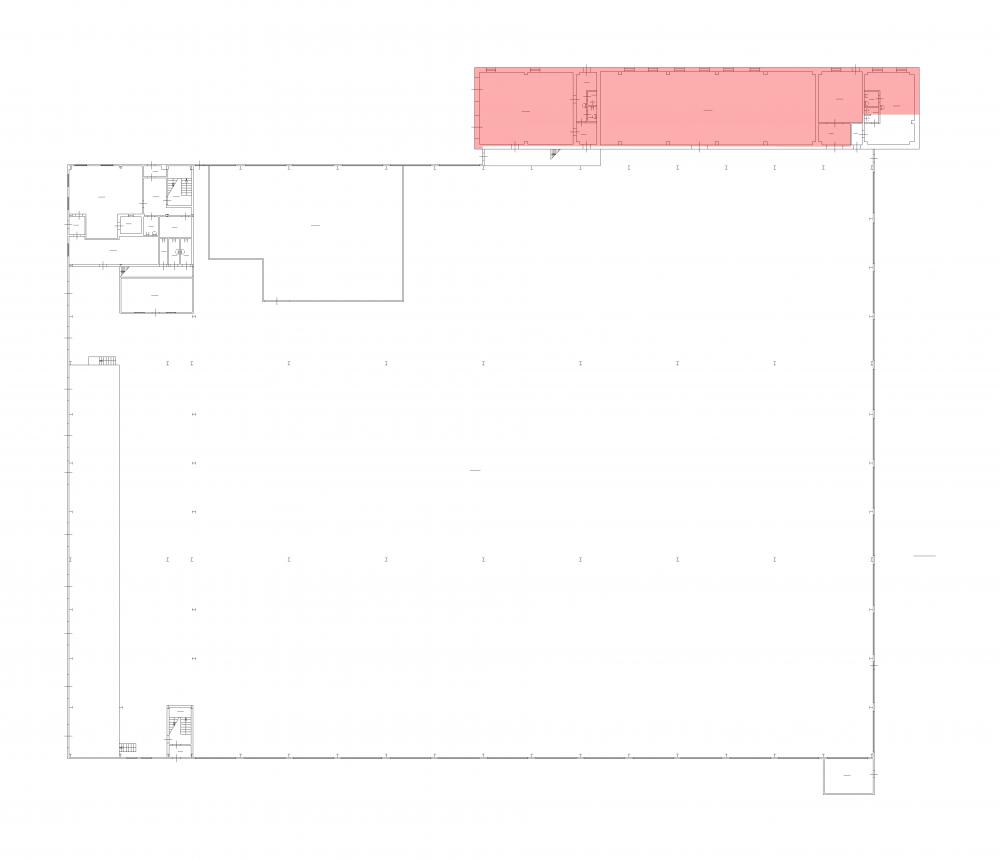
Помещение
Этаж 1
Площадь 503.9 м2
Ставка 999 руб./м2
Характеристики
Безопасность
Охрана Круглосуточная
Коммуникации
Телефон есть
Интернет оптоволокно
В арендную плату входит
  • Профессиональное управление
  • НДС
Оплачивается отдельно
  • Клининг
План помещения
Описание
Аренда производственного блока на территории технопарка "Шаумяна".

1-й этаж здания.
Отдельный вход, роллетные ворота в уровень земли.
Зона разгрузки.

Н потолка 7,94 м, бетонный пол.
Инженерное оснащение: выделенная электрическая мощность, освещение, отопление, пожарная сигнализация, ХВС и водоотведение.

Услуги: охрана 24 часа, парковка.

Рядом пролегают крупные магистрали: Софийская, Салова, Белы Куна и Бухарестская улицы.
В 15 минутах ходьбы станция метро "Бухарестская", в нескольких шагах - автобусные остановки.
+7 (812) 244-72-90
Перезвоните мне
Хотите посмотреть? Покажем вам это помещение и несколько похожих
Запишитесь на просмотр
Вас также может заинтересовать
591 м2
981 060 руб