Назовите оператору контакт центра при звонке ваш промокод:    

Безопасная аренда

Подробнее

Онлайн просмотры и договор с цифровой подписью

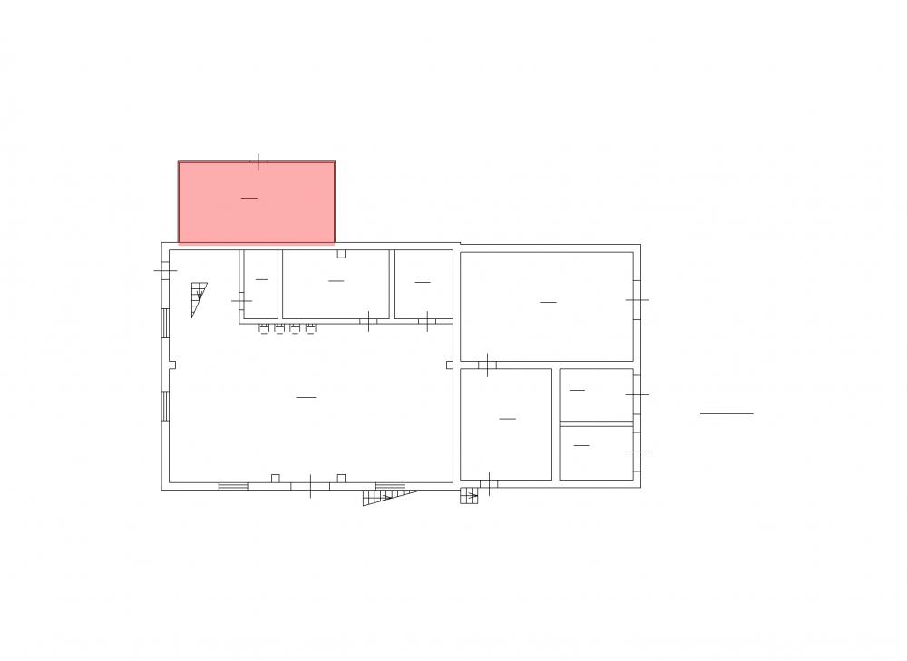
Помещение
Этаж 1
Площадь 35.4 м2
Ставка 599 руб./м2
Характеристики
Безопасность
Охрана Круглосуточная
Коммуникации
Телефон есть
Интернет оптоволокно
В арендную плату входит
  • Профессиональное управление
  • НДС
Оплачивается отдельно
  • Клининг
План помещения
Описание
Предлагается в аренду склад площадью 35,4 кв. м во Фрунзенском районе города.

Расположение: ул. Салова, д. 56.
1-й этаж здания.
Ближайшая станция метро - "Бухарестская".

Помещение без окон, стены из профнастила, бетонный пол, ворота.
Отопления нет.
Подъезд грузового автотранспорта типа "ГАЗЕЛЬ".
Разгрузка со стороны внутренней парковки (заезд с ул. Салова, д. 56).

Помещение оснащено: выделенной электроэнергией, освещением.
Услуги: парковка, круглосуточная охрана территории.

На территории работает кафе, терминалы приема оплаты, банкоматы.

В стоимость аренды включен НДС.
+7 (812) 244-72-90
Перезвоните мне
Хотите посмотреть? Покажем вам это помещение и несколько похожих
Запишитесь на просмотр
Вас также может заинтересовать
35.3 м2
21 497.7 руб
35.3 м2
21 144.7 руб