Назовите оператору контакт центра при звонке ваш промокод:    

Безопасная аренда

Подробнее

Онлайн просмотры и договор с цифровой подписью

Помещение
Этаж 1
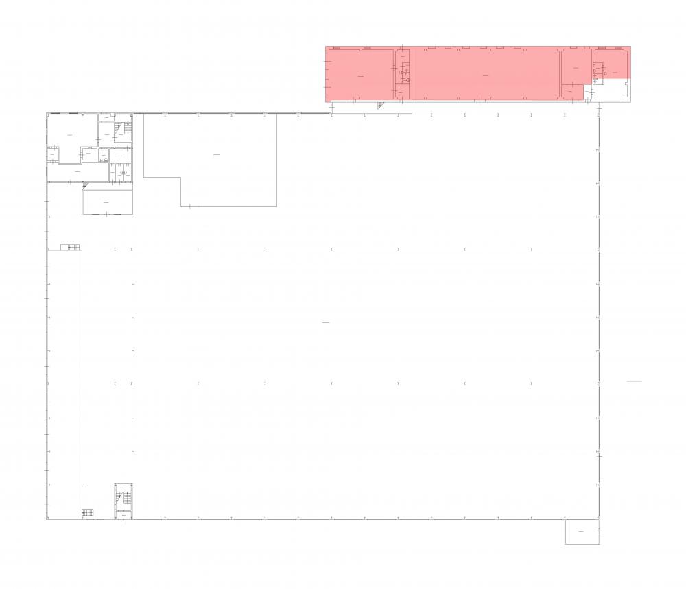
Площадь 503.8 м2
Ставка 999 руб./м2
Характеристики
Безопасность
Охрана Круглосуточная
Коммуникации
Телефон есть
Интернет оптоволокно
В арендную плату входит
  • Профессиональное управление
  • НДС
Оплачивается отдельно
  • Клининг
План помещения
Описание
Предлагаем в аренду склад площадью 503.8 кв. м у станции метро "Бухарестская".

1-й этаж здания на ул. Салова, д.56.
Высота потолка 7,94 м, антипылевые полы, роллетные ворота в уровень земли.

Оснащение: выделенная электрическая мощность, освещение, отопление, пожарная сигнализация, ХВС и водоотведение.
Ведётся видеонаблюдение.

На территории есть парковка для сотрудников и гостей.
В шаговой доступности - столовая.

Расположение: технопарк "Шаумяна".
Рядом съезд на ЗСД, КАД с выездом на Московское шоссе,  Витебский проспект, Бухарестскую и Софийскую улиц.

Территория круглосуточно охраняется, контрольно-пропускная система позволяет вести учет рабочего времени.
+7 (812) 244-72-90
Перезвоните мне
Хотите посмотреть? Покажем вам это помещение и несколько похожих
Запишитесь на просмотр
Вас также может заинтересовать
526 м2
925 760 руб