Назовите оператору контакт центра при звонке ваш промокод:    

Безопасная аренда

Подробнее

Онлайн просмотры и договор с цифровой подписью

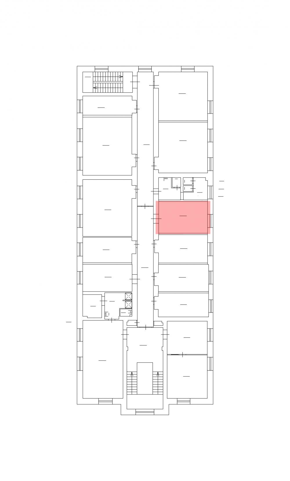
Помещение
Этаж 2
Площадь 26 м2
Ставка 879 руб./м2
Характеристики
Безопасность
Охрана Круглосуточная
Коммуникации
Телефон есть
Интернет оптоволокно
В арендную плату входит
  • Профессиональное управление
  • НДС
Оплачивается отдельно
  • Клининг
План помещения
Описание
Уютный офис на территории технопарка "Шауияна".
Адрес: ул. Салова, дом 45.
Площадь помещения: 26 кв. м.
Этаж: второй.

Отделка и состояние:
*Напольное покрытие: качественный линолеум.
*Потолки: современная подвесная система.
*Стены: окрашены.
*Окна: пластиковые стеклопакеты.

Коммуникации:
*Высокоскоростной интернет.
*Цифровая телефония.

Безопасность:
*Система охраны: круглосуточное дежурство.
*Контроль доступа: современная система безопасности.

Условия аренды:
*Включение НДС: в стоимость аренды.
*Собственник: прямая аренда без посредников.

Преимущества помещения:
*Готовое решение: не требует дополнительных вложений в ремонт.
*Комфортные условия: современная отделка и оснащение.
*Развитая инфраструктура: все необходимое для работы.
*Безопасность: высокий уровень охраны.

Офис идеально подходит для:
*Малых предприятий.
*Представительств компаний.
*Офисных служб.
*Консультационных центров.

Создайте комфортное рабочее пространство в современном технопарке с развитой инфраструктурой и всеми необходимыми условиями для эффективной работы!
Для уточнения деталей и организации просмотра свяжитесь с нами.
+7 (812) 244-72-90
Перезвоните мне
Хотите посмотреть? Покажем вам это помещение и несколько похожих
Запишитесь на просмотр
Вас также может заинтересовать
26.3 м2
28 903.7 руб
26.2 м2
28 793.8 руб
20.9 м2
23 930.5 руб
21.1 м2
23 188.9 руб
21 м2
20 979 руб