Назовите оператору контакт центра при звонке ваш промокод:    

Безопасная аренда

Подробнее

Онлайн просмотры и договор с цифровой подписью

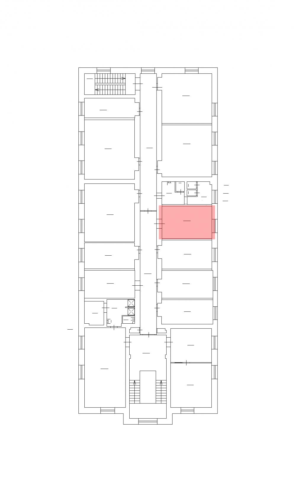
Помещение
Этаж 2
Площадь 26.3 м2
Ставка 1 099 руб./м2
Характеристики
Безопасность
Охрана Круглосуточная
Коммуникации
Телефон есть
Интернет оптоволокно
В арендную плату входит
  • Профессиональное управление
  • НДС
Оплачивается отдельно
  • Клининг
План помещения
Описание
Помещение под архив во Фрунзенском районе.
Адрес: ул. Салова, дом 45.
Транспортная доступность: станция метро "Бухарестская".
Этаж: второй.

Оснащение:
*Электроснабжение.
*Отопление.
*Освещение.

Коммуникации:
*Высокоскоростной интернет.
*Цифровая телефония.

Безопасность:
*Контрольно-пропускная система.
*Круглосуточная охрана.
*Пожарная сигнализация.

Надежность хранения:
*Высокий уровень безопасности.
*Контроль доступа.

Удобство работы:
*Возможность организации рабочего места.
*Современные коммуникации.
*Удобная транспортная доступность.

Аренда от собственника:
*Отсутствие посредников.
*Прозрачные условия.

Помещение идеально подходит для организации архивного хранения благодаря:
*Высокому уровню безопасности.
*Современной отделке.
*Наличию всех необходимых коммуникаций.
*Удобному расположению.

Для получения подробной информации и организации просмотра свяжитесь с нами.
+7 (812) 244-72-90
Перезвоните мне
Хотите посмотреть? Покажем вам это помещение и несколько похожих
Запишитесь на просмотр
Вас также может заинтересовать
26.2 м2
28 793.8 руб
24.4 м2
23 399.6 руб
21.1 м2
23 188.9 руб
26 м2
22 854 руб
25 м2
18 250 руб