Назовите оператору контакт центра при звонке ваш промокод:    

Безопасная аренда

Подробнее

Онлайн просмотры и договор с цифровой подписью

Помещение
Этаж 2
Площадь 24.4 м2
Ставка 959 руб./м2
Характеристики
Безопасность
Охрана Круглосуточная
Коммуникации
Телефон есть
Интернет оптоволокно
В арендную плату входит
  • Профессиональное управление
  • НДС
Оплачивается отдельно
  • Клининг
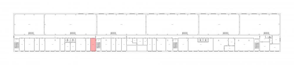
План помещения
Описание
В пешей доступности от станции метро "Бухарестская" сдаётся в аренду помещение под офис.

Транспортная доступность обеспечена близостью Софийской улицы и съезда на ЗСД.

Здание находится под круглосуточной охраной, ведётся постоянный видеомониторинг.
Установлены датчики пожарной сигнализации, действует контрольно-пропускной режим.

Площадь помещения - 24.4 кв. м.
Второй этаж здания на ул. Салова, д.56.

Отделка: линолеум, окрашенные обои и подвесной потолок.
Проведены электричество, отопление и освещение, отдельно оплачиваются интернет и телефония.

С заботой о сотрудника на территории есть столовая. Во внутреннем дворе - парковка.

Более подробную информацию можете узнать у менеджеров колл-центра.
+7 (812) 244-72-90
Перезвоните мне
Хотите посмотреть? Покажем вам это помещение и несколько похожих
Запишитесь на просмотр
Вас также может заинтересовать
26.2 м2
28 793.8 руб
20.9 м2
23 930.5 руб
21.1 м2
23 188.9 руб
26 м2
22 854 руб
21 м2
20 979 руб