Назовите оператору контакт центра при звонке ваш промокод:    

Безопасная аренда

Подробнее

Онлайн просмотры и договор с цифровой подписью

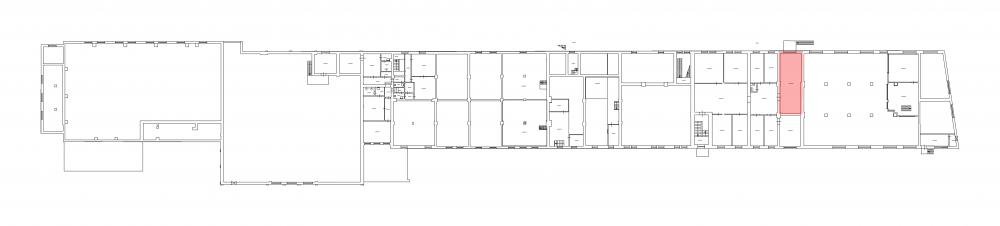
Помещение
Этаж 2
Площадь 56.6 м2
Ставка 679 руб./м2
Характеристики
Безопасность
Охрана Круглосуточная
Коммуникации
Телефон есть
Интернет оптоволокно
В арендную плату входит
  • Профессиональное управление
  • НДС
Оплачивается отдельно
  • Клининг
План помещения
Описание
Склад 56,6 кв. м сдаётся в аренду на улице Салова, дом 45.
2-й этаж здания на территории технопарка "Шаумяна".

Оснащение: пожарная сигнализация, выделенная электроэнергия, освещение, отопление.
На объекте ведётся круглосуточная охрана, проход осуществляется по электронным картам доступа.

В паре минут езды находятся Витебский проспект и Софийская улица.

Звоните и
+7 (812) 244-72-90
Перезвоните мне
Хотите посмотреть? Покажем вам это помещение и несколько похожих
Запишитесь на просмотр
Вас также может заинтересовать
49.2 м2
39 310.8 руб
54.8 м2
32 825.2 руб
51 м2
31 569 руб
50.7 м2
30 876.3 руб
50.5 м2
30 350.5 руб