Назовите оператору контакт центра при звонке ваш промокод:    

Безопасная аренда

Подробнее

Онлайн просмотры и договор с цифровой подписью

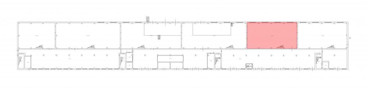
Помещение
Этаж 1
Площадь 305.9 м2
Ставка 969 руб./м2
Характеристики
Безопасность
Охрана Круглосуточная
Коммуникации
Телефон есть
Интернет оптоволокно
В арендную плату входит
  • Профессиональное управление
  • НДС
Оплачивается отдельно
  • Клининг
План помещения
Описание
Напрямую от собственника сдаётся склад на первом этаже с высокими потолками и большими окнами.

Улица Салова, дом 56.
Ближайшая станция метро "Бухарестская" 18 минут пешком.
Удобный подъезд для больших грузовых фур, место под парковку

Бетонные полы, высота потолка свыше 7 метров

Ворота 3х4 метра позволят с удобством разгружать большие грузы.

Услуги: Можно подключить высокоскоростной интернет и телефонию
Оснащение: отопление, пожарная сигнализация, выделенная электрическая мощность 10 кВт с возможностью увеличения.
НДС уже входит в ставку.

Звоните и заберите первым востребованное помещение для вашего бизнеса!
+7 (812) 244-72-90
Перезвоните мне
Хотите посмотреть? Покажем вам это помещение и несколько похожих
Запишитесь на просмотр
Вас также может заинтересовать
305.9 м2
305 594.1 руб
305.9 м2
296 417.1 руб